What We Do
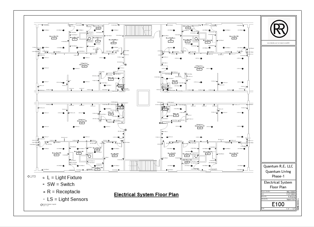
We specialize in converting 2D drawings into 3D BIM-ready Revit models, designed for accuracy, coordination, and clarity. Our services help project teams modernize workflows while preserving the precision of AutoCAD.
Our Core Services Include:
PDF / DWG → Revit Conversion – Turn 2D drawings into clean, reliable Revit models.
BIM-Ready Deliverables – Models built to meet coordination and industry standards.
2D to 3D Visualization – Enhance presentations with clear 3D visuals.
Coordination Support – Streamlined models for smoother collaboration.







RONGRID BIM LLC • CAGE Code: 15TJ1
• Veteran-Owned Small Business (VOSB – pending) • Jacksonville, FL

Company Data: UEI Q2D1G9JM8KZ5 • NAICS 541340, 541330, 541310 •Richard@IronGridBim.com• (904) 866-1429